The Residential Real Estate Sales Disclosure Statement is a form used in residential sales transactions in New Jersey. It allows sellers to disclose the condition of their property to potential buyers. This form is essential for promoting transparency in real estate transactions and differs from similar forms by focusing specifically on the propertyâs current state and known issues that may affect its value.
Use the Residential Real Estate Sales Disclosure Statement when selling residential property in New Jersey. This document is crucial during the sale process, helping to inform potential buyers about existing issues or conditions that may affect their decision to purchase the property. It is typically filled out before the property is put on the market and presented to interested buyers during negotiations.
This form is intended for:
This form does not typically require notarization unless specified by local law. Ensure you confirm any specific local requirements before finalizing the document.
Our built-in tools help you complete, sign, share, and store your documents in one place.
Make edits, fill in missing information, and update formatting in US Legal Forms—just like you would in MS Word.
Download a copy, print it, send it by email, or mail it via USPS—whatever works best for your next step.
Sign and collect signatures with our SignNow integration. Send to multiple recipients, set reminders, and more. Go Premium to unlock E-Sign.
If this form requires notarization, complete it online through a secure video call—no need to meet a notary in person or wait for an appointment.
We protect your documents and personal data by following strict security and privacy standards.

Make edits, fill in missing information, and update formatting in US Legal Forms—just like you would in MS Word.

Download a copy, print it, send it by email, or mail it via USPS—whatever works best for your next step.

Sign and collect signatures with our SignNow integration. Send to multiple recipients, set reminders, and more. Go Premium to unlock E-Sign.

If this form requires notarization, complete it online through a secure video call—no need to meet a notary in person or wait for an appointment.

We protect your documents and personal data by following strict security and privacy standards.
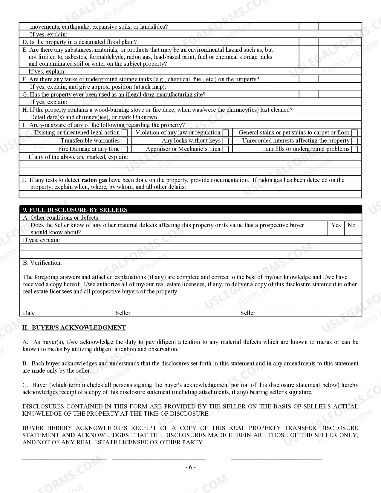
Although there's no list of required disclosures a seller must make according to New Jersey's statutes, the state's courts have carved out rules (under what's called the "common law") to protect buyers against sellers who fail to disclose material facts or who hide information about their property.
If a seller fails to disclose, or actively conceals, problems that affect the value of the property; they are violating the law, and may be subject to a lawsuit for recovery of damages based on claims of fraud and deceit, misrepresentation and/or breach of contract.
California, like many states, requires its residential property sellers to disclose, in writing, details about the property they have on the market.(See, California Civil Code § 1102.)
When is a seller exempt from providing a seller's disclosure?Another seller hadn't even lived in the property they were selling; it was an investment property and they didn't have enough first-hand knowledge of the property's history to provide a disclosure.
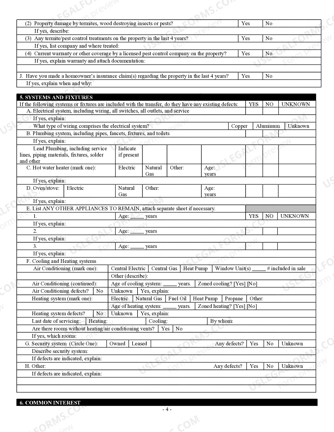
Among the numerous types of things a seller in New Jersey is required to disclose are electrical system hazards; structural problems; roof leakage; termites; environmental hazards; and plumbing, water, and sewage issues.
Sellers should disclose anything that required a permit in their home. These are usually significant items that should be disclosed. Examples include the heating system, air conditioning, the roof, or anything related to the plumbing or electrical systems.
Sellers have to disclose any occupants (ie boyfriend, grandparent), who should also sign the contract. Sellers must disclose any official letters that have been received. And it is advisable to disclose any planning matters relating to the house or the neighbourhood.
"No Seller Disclosures" means that the seller is selling the property without disclosing any defects or facts that might be necessary for a buyer to make an informed decision. A purchaser should get written permission to bring the purchaser's...
One question all sellers are required by law to answer on the Real Estate Transfer Disclosure Statement is whether there are any neighborhood noise problems or other nuisances. If the answer is yes, the seller must explain that answer in detail.