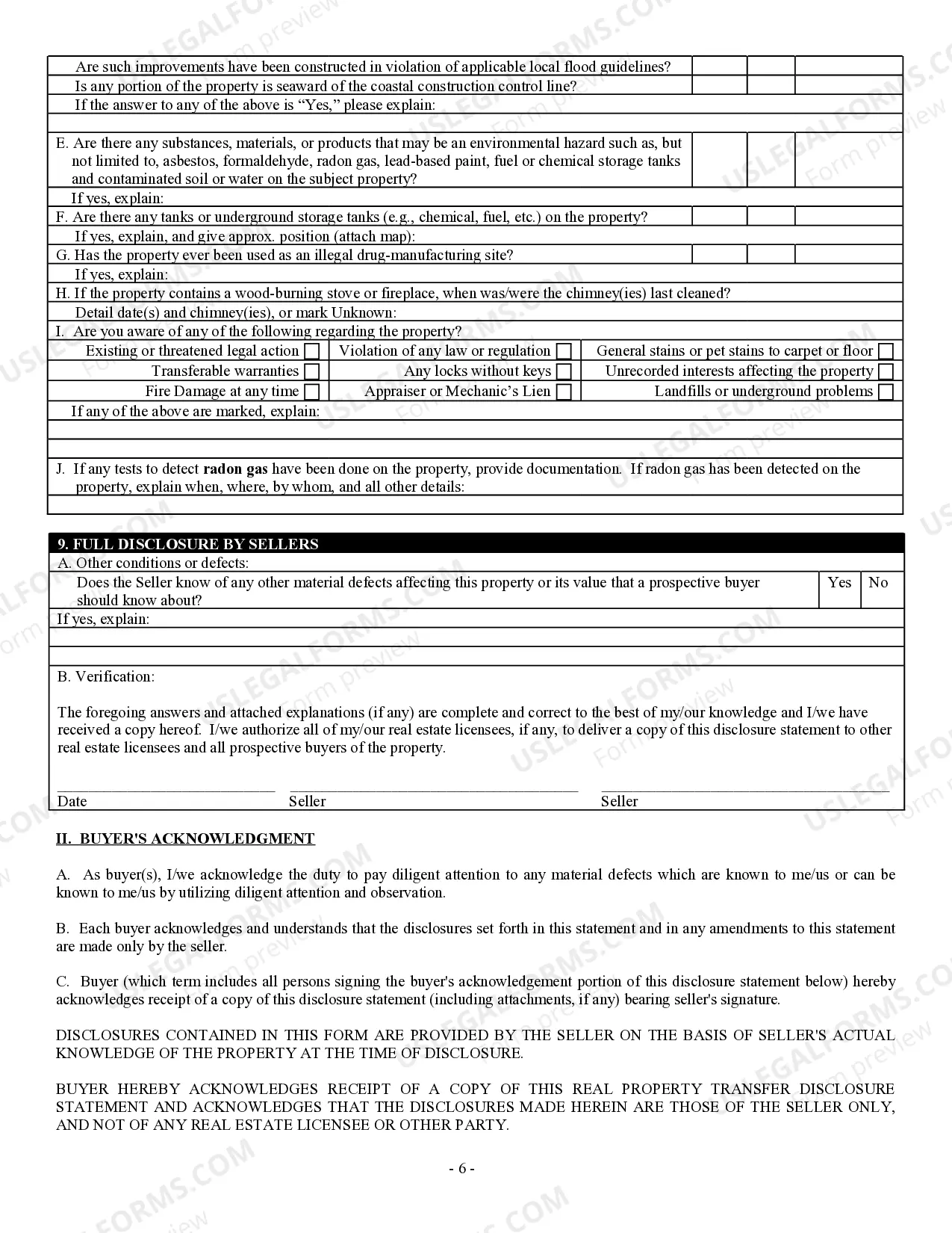
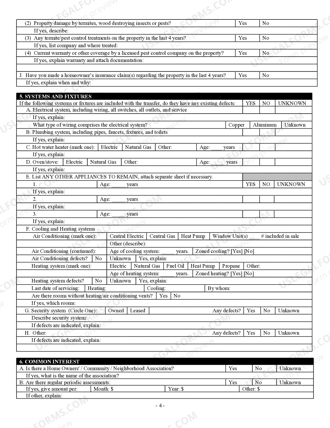
The Residential Real Estate Sales Disclosure Statement is a document required in Florida residential sales transactions. This form is completed by the seller to disclose the condition of the property to prospective buyers. Unlike other real estate forms, this disclosure focuses specifically on the seller's knowledge of the property's condition, ensuring transparency and helping buyers make informed decisions.
This form should be used when a seller is listing a residential property for sale in Florida. It is essential for situations where the seller must provide detailed information about the propertyâs condition to the buyer. It protects both parties by ensuring all known issues are disclosed prior to the transaction.
Who should use this form:
Steps to complete the Residential Real Estate Sales Disclosure Statement:
This form does not typically require notarization unless specified by local law. However, it is advisable to check with local regulations to confirm requirements specific to your situation.
Our built-in tools help you complete, sign, share, and store your documents in one place.
Make edits, fill in missing information, and update formatting in US Legal Forms—just like you would in MS Word.
Download a copy, print it, send it by email, or mail it via USPS—whatever works best for your next step.
Sign and collect signatures with our SignNow integration. Send to multiple recipients, set reminders, and more. Go Premium to unlock E-Sign.
If this form requires notarization, complete it online through a secure video call—no need to meet a notary in person or wait for an appointment.
We protect your documents and personal data by following strict security and privacy standards.

Make edits, fill in missing information, and update formatting in US Legal Forms—just like you would in MS Word.

Download a copy, print it, send it by email, or mail it via USPS—whatever works best for your next step.

Sign and collect signatures with our SignNow integration. Send to multiple recipients, set reminders, and more. Go Premium to unlock E-Sign.

If this form requires notarization, complete it online through a secure video call—no need to meet a notary in person or wait for an appointment.

We protect your documents and personal data by following strict security and privacy standards.
Yes, a property disclosure statement is required in Florida, although specific requirements may vary depending on the type of property. The Florida Residential Real Estate Sales Disclosure Statement is essential because it protects both buyers and sellers by ensuring essential information is disclosed. This process helps minimize disputes after closing. Understanding these requirements can be easier with the help of uslegalforms, which offers valuable insights and resources.
Typically, the seller is responsible for completing the transfer disclosure statement. This aspect of the Florida Residential Real Estate Sales Disclosure Statement helps inform buyers about the property's condition and any significant repairs. This ensures buyers make informed decisions while fostering open communication between both parties. For assistance, you can rely on uslegalforms to access templates and guides.
The condition of the property disclosure form should be completed by the seller of the property. This Florida Residential Real Estate Sales Disclosure Statement allows sellers to disclose known issues about the property's condition. By providing accurate information, sellers can create transparency and trust with potential buyers. Utilizing resources like uslegalforms can simplify the process of completing this form.
When selling a house in Kentucky, sellers must disclose any known material defects of the property, similar to Florida's requirements. However, the specifics of the disclosure may vary by state. Though the Florida Residential Real Estate Sales Disclosure Statement does not apply in Kentucky, it sets a standard for transparency that sellers elsewhere should follow. Ultimately, being open about property conditions can significantly affect the sale process.
Yes, Florida law requires sellers of residential real estate to provide a property disclosure statement. The Florida Residential Real Estate Sales Disclosure Statement is crucial for safeguarding both sellers and buyers during the transaction. This document details the property’s condition, ensuring buyers are well-informed about what they are purchasing. Having this disclosure helps to clarify expectations and can avert future conflicts.
In Florida, realtors are required to provide accurate information regarding property conditions and must actively disclose any known defects. They should ensure that sellers complete the Florida Residential Real Estate Sales Disclosure Statement accurately. This duty promotes transparency and protects the interests of all parties involved in a real estate transaction. Additionally, realtors can offer valuable support by guiding sellers through the disclosure process.
Lying on a seller disclosure can lead to serious legal consequences, including lawsuits or financial penalties. If a buyer discovers that a seller has intentionally misrepresented property conditions on the Florida Residential Real Estate Sales Disclosure Statement, they might pursue damages. Moreover, dishonesty can damage the seller's reputation and future sales opportunities. It's always best to be transparent to foster trust and facilitate a smooth transaction.
To fill out a seller's property disclosure, start by gathering all necessary information about the property, including repairs, issues, and upgrades. Utilize the Florida Residential Real Estate Sales Disclosure Statement as a guide to cover vital areas of your property. Be honest and thorough; missing details can lead to misunderstandings. Once completed, review the document carefully before sharing it with potential buyers.
The seller of the property is responsible for completing the seller's property disclosure statement. This statement often requires the seller to detail any known defects or issues with the property. In Florida, it's essential for sellers to be honest and thorough in filling out the Florida Residential Real Estate Sales Disclosure Statement, as this can affect the sale and protect both parties involved. Ensuring accurate information can simplify the transaction and avoid disputes later.
Most seller property disclosures are required to inform potential buyers about the property's condition and any existing issues. The Florida Residential Real Estate Sales Disclosure Statement plays a crucial role in this process. It helps establish transparency between buyers and sellers, ensuring that buyers have the necessary information to make informed decisions. This disclosure builds trust and streamlines the sales process.