The Residential Real Estate Sales Disclosure Statement is a legal document used in residential property transactions in Arkansas. It is designed for sellers to disclose the condition of their property to potential buyers. This form differs from other real estate documents by focusing specifically on the seller's knowledge of the property's condition, helping buyers make informed decisions during the purchase process.
This form should be used whenever a residential property is being sold in Arkansas. It is particularly important in situations where the seller is legally obligated to disclose property conditions to the buyer. Completing this form helps protect both parties by ensuring that the buyer is aware of any known issues prior to finalizing the sale.
This form does not typically require notarization unless specified by local law. It is recommended to verify specific requirements based on the sale transaction and local regulations.
Our built-in tools help you complete, sign, share, and store your documents in one place.
Make edits, fill in missing information, and update formatting in US Legal Forms—just like you would in MS Word.
Download a copy, print it, send it by email, or mail it via USPS—whatever works best for your next step.
Sign and collect signatures with our SignNow integration. Send to multiple recipients, set reminders, and more. Go Premium to unlock E-Sign.
If this form requires notarization, complete it online through a secure video call—no need to meet a notary in person or wait for an appointment.
We protect your documents and personal data by following strict security and privacy standards.

Make edits, fill in missing information, and update formatting in US Legal Forms—just like you would in MS Word.

Download a copy, print it, send it by email, or mail it via USPS—whatever works best for your next step.

Sign and collect signatures with our SignNow integration. Send to multiple recipients, set reminders, and more. Go Premium to unlock E-Sign.

If this form requires notarization, complete it online through a secure video call—no need to meet a notary in person or wait for an appointment.

We protect your documents and personal data by following strict security and privacy standards.
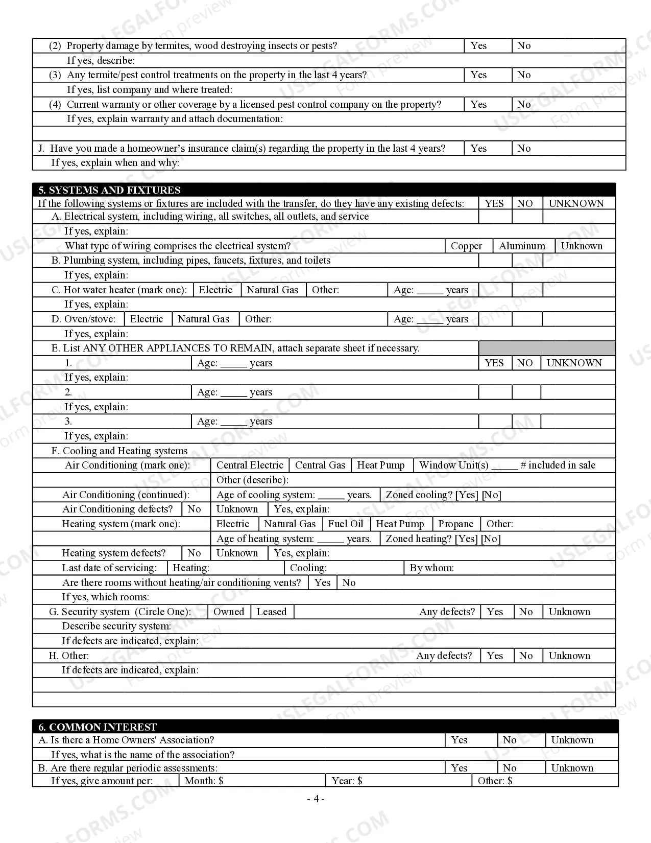
A property disclosure statement provides a detailed account of a property's condition from the seller's perspective. Its primary purpose is to disclose any known issues or defects that could affect the property's value or safety. This statement is crucial for buyers as it enables them to evaluate risks and understand what they are purchasing. In Arkansas, the Arkansas Residential Real Estate Sales Disclosure Statement plays a vital role in this transparent exchange.
To access seller disclosure, you can typically request it directly from the seller or through your real estate agent. Many agents include this information in the listing of the property. If you're in Arkansas, the Arkansas Residential Real Estate Sales Disclosure Statement may also be available online through multiple listing services or state real estate websites. Utilizing resources like uslegalforms can simplify the process by offering templates and forms for easy access.
The residential real property disclosure report serves to inform potential buyers about the condition of a property. This report outlines any known issues, such as structural problems or pest damage. By providing essential information, it promotes transparency and helps buyers make informed decisions. In tandem with the Arkansas Residential Real Estate Sales Disclosure Statement, it fosters trust between sellers and buyers.
In Arkansas, sellers must disclose certain events, but the requirement to disclose a death in a house depends on particular circumstances. Generally, non-disclosure of a death is permissible if it did not affect the property's value. However, being upfront about such events can demonstrate integrity to potential buyers. If in doubt, platforms like uslegalforms can provide guidance on navigating these sensitive issues.
Lack of a seller disclosure can raise red flags for potential buyers. Without the Arkansas Residential Real Estate Sales Disclosure Statement, buyers may question the property's condition and the seller's honesty. This absence can lead to mistrust and may even deter buyers from making an offer. It's always best to provide comprehensive disclosures to foster transparency and build credibility.
Filling out a seller's property disclosure involves reviewing the Arkansas Residential Real Estate Sales Disclosure Statement and answering all questions honestly. Be sure to disclose any known defects, repairs, or issues with the property. Consider using platforms like uslegalforms to access templates and guides that simplify the process. Completing the document accurately helps protect you from future legal issues.
Disclosure must take place before the sale of the property is finalized. According to the Arkansas Residential Real Estate Sales Disclosure Statement, sellers need to present this document to potential buyers. This allows buyers to assess the property's condition and make informed decisions. It is essential for a smooth and clear transaction process.
Yes, a property disclosure is required in Arkansas under the Arkansas Residential Real Estate Sales Disclosure Statement. This ensures potential buyers are informed about the condition of the property. Sellers must provide accurate information regarding any known issues with the property. This requirement helps promote transparency in real estate transactions.
The seller's property disclosure statement must disclose any significant issues with the property, such as structural problems, pest infestations, or hazardous materials like asbestos. These disclosures are crucial for buyers to make informed choices and for sellers to protect themselves from future liability. By being forthright, you contribute to a smoother transaction process. You can find helpful resources on uslegalforms to assist you in creating an effective disclosure statement.
A property disclosure statement in Arkansas must include information about the property's condition, such as any known defects, previous damage, or repairs made. This statement serves as an essential tool for prospective buyers to understand what they are purchasing. Including comprehensive and honest details protects both parties and fosters trust. Access user-friendly templates through uslegalforms to make this document straightforward.