Residential Real Estate Sales Disclosure Statement
Seller's Disclosure
CHAPTER 113
SALES OF REAL PROPERTY
REQUIRED DISCLOSURES
General Information
NRS 113.060
Certain sellers to give notice of rates for water and sewerage services.
NRS 113.065
Required disclosure upon sale of home or improved lot adjacent to open
range; disclosure constitutes affirmative defense in action resulting from
livestock entering property.
NRS 113.070
Required disclosures by certain sellers relating to zoning classifications,
designations in master plan regarding land use and general land uses described
in master plan.
NRS 113.080
Additional required disclosures by certain sellers in county whose population
is 400,000 or more relating to gaming enterprise districts.
Condition of Residential Property
Offered for Sale
NRS 113.100
Definitions.
NRS 113.110
Conditions required for conveyance of property and to complete service
of document.
NRS 113.120
Regulations prescribing format and contents of form for disclosing condition
of property.
NRS 113.130
Completion and service of disclosure form before conveyance of property;
discovery or worsening of defect after service of form; exceptions; waiver.
NRS 113.135
Certain sellers to provide copies of certain provisions of NRS and give
notice of certain soil reports; initial purchaser entitled to rescind sales
agreement in certain circumstances; waiver of right to rescind.
NRS 113.140
Disclosure of unknown defect not required; form does not constitute warranty;
duty of buyer and prospective buyer to exercise reasonable care.
NRS 113.150
Remedies for sellers delayed disclosure or nondisclosure of defects in
property; waiver.
REQUIRED DISCLOSURES
General Information
NRS 113.060 Certain sellers to give notice of rates for water and sewerage
services.
1. Any person who is proposing to sell a previously unsold home or improved
lot for which water or sewerage services will be provided by a public utility
that:
(b) Presently serves fewer than 2,000 customers,
shall post in a conspicuous place on the property or at his sales office if an improved lot is being sold,
a notice which states the current rates to be charged for such services
or, if the public utility is not presently serving customers, the projected
rates to be charged. The notice must also contain the name, address and
telephone number of the public utility and the division of consumer complaint
resolution of the public utilities commission of Nevada.
2. Before the home or lot is sold, the seller shall give the purchaser a copy
of the notice described in subsection 1.
(Added to NRS by 1987, 476; A 1997, 1963)
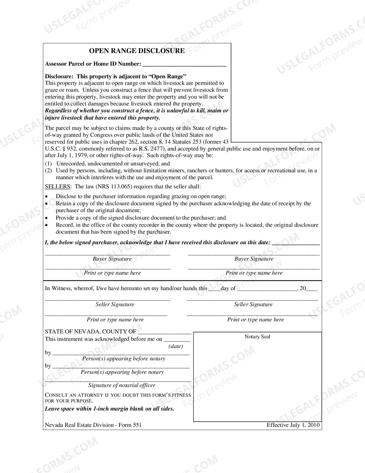
NRS 113.065 Required disclosure upon sale of home or improved lot adjacent
to open range; disclosure constitutes affirmative defense in action resulting
from livestock entering property.
1. Before the purchaser of a home or improved lot that is adjacent to open
range signs a sales agreement, the seller shall, by separate written document,
disclose to the purchaser information regarding grazing on the open range.
The written document must contain a statement with the following language:
This property is adjacent to open range on which livestock are permitted to graze or roam. Unless you construct
a fence that will prevent livestock from entering this property, livestock
may enter the property and you will not be entitled to collect damages
because the livestock entered the property. Regardless of whether you construct
a fence, it is unlawful to kill, maim or injure livestock that have entered
this property.
2. The seller shall retain a copy of the disclosure document that has been
signed by the purchaser acknowledging the date of receipt by the purchaser
of the original document.
3. Compliance with this section by a seller constitutes an affirmative defense
in any action brought against the seller by the purchaser based upon any
damages allegedly suffered as the result of livestock entering the property.
4. As used in this section, open range has the meaning ascribed to it in
NRS 568.355.
(Added to NRS by 2001, 17)
NRS 113.070 Required disclosures by certain sellers relating to zoning classifications,
designations in master plan regarding land use and general land uses described
in master plan.
1. Before the initial purchaser of a residence signs a sales agreement or
opens escrow, whichever occurs earlier, the seller shall, by separate written
document, disclose to the initial purchaser the zoning classifications
and the designations in the master plan regarding land use adopted pursuant
to chapter 278 of NRS, and the general land uses described therein, for
the adjoining parcels of land. The written document must contain a statement
with the following language:
Zoning classifications describe the land uses currently permitted on a parcel of land. Designations in the
master plan regarding land use describe the land uses that the governing
city or county proposes for a parcel of land. Zoning classifications and
designations in the master plan regarding land use are established and
defined by local ordinances. If the zoning classification for a parcel
of land is inconsistent with the designation in the master plan regarding
land use for the parcel, the possibility exists that the zoning classification
may be changed to be consistent with the designation in the master plan
regarding land use for the parcel. Additionally, the local ordinances that
establish and define the various zoning classifications and designations
in the master plan regarding land use are also subject to change.
2. If the residence is located within a subdivision, the disclosure made pursuant
to subsection 1 must be made regarding all parcels of land adjoining the
unit of the subdivision in which the residence is located. If the residence
is located on land divided by a parcel map and not located within a subdivision,
the disclosure must be made regarding all parcels of land adjoining the
parcel map. Such a disclosure must be made regardless of whether the adjoining
parcels are owned by the seller. The seller shall retain a copy of the
disclosure document which has been signed by the initial purchaser acknowledging
the date of receipt by the initial purchaser of the original document.
3. The information contained in the disclosure document required by subsection
1 must:
(a) Be updated not less than once every 6 months, if the information is available
from the local government;
(b) Advise the initial purchaser that the master plan is for the general, comprehensive
and long-term development of land in the area and that the designations
in the master plan regarding land use provide the most probable indication
of future development which may occur on the surrounding properties;
(c) Advise the initial purchaser that the master plan and zoning ordinances
and regulations adopted pursuant to the master plan are subject to change;
and
(d) Provide the initial purchaser with instructions on how to obtain more current
information regarding zoning classifications and designations in the master
plan regarding land use.
4. As used in this section, seller means a person who sells or attempts
to sell any land or tract of land in this state which is divided or proposed
to be divided over any period into two or more lots, parcels, units or
interests, including, but not limited to, undivided interests, which are
offered, known, designated or advertised as a common unit by a common name
or as a part of a common promotional plan of advertising and sale.
(Added to NRS by 1989, 817; A 1995, 380; 1997, 1711; 1999, 910, 1633, 1637)
NRS 113.080 Additional required disclosures by certain sellers in county whose
population is 400,000 or more relating to gaming enterprise districts.
1. Except as otherwise provided in subsection 3, in a county whose population
is 400,000 or more, a seller may not sign a sales agreement with the initial
purchaser of a residence unless the seller, at least 24 hours before the
time of the signing, provides the initial purchaser with a disclosure document
that contains:
(a) A copy of the most recent gaming enterprise district map that has been
made available for public inspection pursuant to NRS 463.309 by the city
or town in which the residence is located or, if the residence is not located
in a city or town, by the county in which the residence is located; and
(b) The location of the gaming enterprise district that is nearest to the residence,
regardless of the jurisdiction in which the nearest gaming enterprise district
is located.
The seller shall retain a copy of the disclosure document that has been signed by the initial purchaser acknowledging
the time and date of receipt by the initial purchaser of the original document.
2. The information contained in the disclosure document required by subsection
1 must:
(c) Provide the initial purchaser with instructions on how to obtain more current
information regarding gaming enterprise districts.
3. The initial purchaser of a residence may waive the 24 hour period required
by subsection 1 if the seller provides the initial purchaser with the information
required by subsections 1 and 2 and the initial purchaser signs a written
waiver. The seller shall retain a copy of the written waiver that has been
signed by the initial purchaser acknowledging the time and date of receipt
by the initial purchaser of the original document.
4. As used in this section, seller has the meaning ascribed to it in NRS
113.070.
(Added to NRS by 1999, 909; A 1999, 1637)
Condition of Residential Property Offered for Sale
NRS 113.100 Definitions. As used in NRS 113.100 to 113.150, inclusive, unless
the context otherwise requires:
1. Defect means a condition that materially affects the value or use of
residential property in an adverse manner.
2. Disclosure form means a form that complies with the regulations adopted
pursuant to NRS 113.120.
3. Dwelling unit means any building, structure or portion thereof which
is occupied as, or designed or intended for occupancy as, a residence by
one person who maintains a household or by two or more persons who maintain
a common household.
4. Residential property means any land in this state to which is affixed
not less than one nor more than four dwelling units.
5. Seller means a person who sells or intends to sell any residential property.
(Added to NRS by 1995, 842; A 1999, 1446)
NRS 113.110 Conditions required for conveyance of property and to complete
service of document. For the purposes of NRS 113.100 to 113.150, inclusive:
1. A conveyance of property occurs:
(b) If an escrow has not been opened for the conveyance, when the purchaser
of the property receives the deed of conveyance.
2. Service of a document is complete:
(b) Three days after the document is mailed, postage prepaid, to the person
being served at his last known address.
(Added to NRS by 1995, 844)
NRS 113.120 Regulations prescribing format and contents of form for disclosing
condition of property. The real estate division of the department of business
and industry shall adopt regulations prescribing the format and contents
of a form for disclosing the condition of residential property offered
for sale. The regulations must ensure that the form:
1. Provides for an evaluation of the condition of any electrical, heating,
cooling, plumbing and sewer systems on the property, and of the condition
of any other aspects of the property which affect its use or value, and
allows the seller of the property to indicate whether or not each of those
systems and other aspects of the property has a defect of which the seller
is aware.
2. Provides notice:
(c) That the sellers agent, and the agent of the purchaser or potential purchaser
of the residential property, may reveal the completed form and its contents
to any purchaser or potential purchaser of the residential property.
(Added to NRS by 1995, 842)
NRS 113.130 Completion and service of disclosure form before conveyance of
property; discovery or worsening of defect after service of form; exceptions;
waiver.
1. Except as otherwise provided in subsections 2 and 3:
(b) If, after service of the completed disclosure form but before conveyance
of the property to the purchaser, a seller or his agent discovers a new
defect in the residential property that was not identified on the completed
disclosure form or discovers that a defect identified on the completed
disclosure form has become worse than was indicated on the form, the seller
or his agent shall inform the purchaser or his agent of that fact, in writing,
as soon as practicable after the discovery of that fact but in no event
later than the conveyance of the property to the purchaser. If the
seller does not agree to repair or replace the defect, the purchaser may:
2. Subsection 1 does not apply to a sale or intended sale of residential property:
(c) Between any co-owners of the property, spouses or persons related within
the third degree of consanguinity.
(d) Which is the first sale of a residence that was constructed by a licensed
contractor and not occupied by the purchaser for more than 120 days.
(e) By any bank, thrift company, credit union, trust company, savings and loan
association or mortgage or farm loan association, licensed as such under
the laws of this state or of the United States, if it has acquired the
property for development, for the convenient transaction of its business,
or as a result of foreclosure of the property encumbered in good faith
as security for a loan or other obligation it has originated or holds.
(f) By a person who takes temporary possession or control of or title to the
property solely to facilitate the sale of the property on behalf of a person
who relocates to another county, state or country before title to the property
is transferred to a purchaser.
3. A purchaser of residential property may waive any of the requirements of
subsection 1. Any such waiver is effective only if it is made in a written
document that is signed by the purchaser and notarized.
(Added to NRS by 1995, 842; A 1997, 349)
NRS 113.135 Certain sellers to provide copies of certain provisions of NRS
and give notice of certain soil reports; initial purchaser entitled to
rescind sales agreement in certain circumstances; waiver of right to rescind.
1. Upon signing a sales agreement with the initial purchaser of residential
property that was not occupied by the purchaser for more than 120 days
after substantial completion of the construction of the residential property,
the seller shall:
(a) Provide to the initial purchaser a copy of NRS 11.202 to 11.206, inclusive,
and 40.600 to 40.695, inclusive;
(b) Notify the initial purchaser of any soil report prepared for the residential
property or for the subdivision in which the residential property is located;
and
(c) If requested in writing by the initial purchaser not later than 5 days
after signing the sales agreement, provide to the purchaser without cost
each report described in paragraph (b) not later than 5 days after the
seller receives the written request.
2. Not later than 20 days after receipt of all reports pursuant to paragraph
(c) of subsection 1, the initial purchaser may rescind the sales agreement.
3. The initial purchaser may waive his right to rescind the sales agreement
pursuant to subsection 2. Such a waiver is effective only if it is made
in a written document that is signed by the purchaser.
(Added to NRS by 1999, 1446)
NRS 113.140 Disclosure of unknown defect not required; form does not constitute
warranty; duty of buyer and prospective buyer to exercise reasonable care.
1. NRS 113.130 does not require a seller to disclose a defect in residential
property of which he is not aware.
2. A completed disclosure form does not constitute an express or implied warranty
regarding any condition of residential property.
3. Neither this chapter nor chapter 645 of NRS relieves a buyer or prospective
buyer of the duty to exercise reasonable care to protect himself.
(Added to NRS by 1995, 843; A 2001, 2896)
NRS 113.150 Remedies for sellers delayed disclosure or nondisclosure of defects
in property; waiver.
1. If a seller or his agent fails to serve a completed disclosure form in
accordance with the requirements of NRS 113.130, the purchaser may, at
any time before the conveyance of the property to the purchaser, rescind
the agreement to purchase the property without any penalties.
2. If, before the conveyance of the property to the purchaser, a seller or
his agent informs the purchaser or his agent, through the disclosure form
or another written notice, of a defect in the property of which the cost
of repair or replacement was not limited by provisions in the agreement
to purchase the property, the purchaser may:
(a) Rescind the agreement to purchase the property at any time before the conveyance
of the property to the purchaser; or
(b) Close escrow and accept the property with the defect as revealed by the
seller or his agent without further recourse.
3. Rescission of an agreement pursuant to subsection 2 is effective only if
made in writing, notarized and served not later than 4 working days after
the date on which the purchaser is informed of the defect:
(b) If an escrow has not been opened for the conveyance, on the seller or his
agent.
4. Except as otherwise provided in subsection 5, if a seller conveys residential
property to a purchaser without complying with the requirements of NRS
113.130 or otherwise providing the purchaser or his agent with written
notice of all defects in the property of which the seller is aware, and
there is a defect in the property of which the seller was aware before
the property was conveyed to the purchaser and of which the cost of repair
or replacement was not limited by provisions in the agreement to purchase
the property, the purchaser is entitled to recover from the seller treble
the amount necessary to repair or replace the defective part of the property,
together with court costs and reasonable attorneys fees. An action to
enforce the provisions of this subsection must be commenced not later than
1 year after the purchaser discovers or reasonably should have discovered
the defect or 2 years after the conveyance of the property to the purchaser,
whichever occurs later.
5. A purchaser may not recover damages from a seller pursuant to subsection
4 on the basis of an error or omission in the disclosure form that was
caused by the sellers reliance upon information provided to the seller
by:
(a) An officer or employee of this state or any political subdivision of this
state in the ordinary course of his duties; or
(b) A contractor, engineer, land surveyor, certified inspector as defined in
NRS 645D.040 or pesticide applicator, who was authorized to practice that
profession in this state at the time the information was provided.
6. A purchaser of residential property may waive any of his rights under this
section. Any such waiver is effective only if it is made in a written document
that is signed by the purchaser and notarized.
(Added to NRS by 1995, 843; A 1997, 350, 1797)