Missouri Disclosure Statement For Medical Device Security

State:
Missouri
Control #:
MO-37014
Format:
Word; 
Rich Text
Instant download

This form is part of a form package!

Get all related documents in one bundle, so you don’t have to search separately.

Description

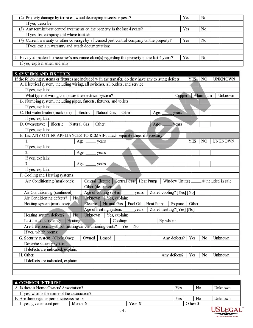
The Missouri disclosure statement for medical device security is a crucial document designed to ensure transparency regarding the condition and operational reliability of medical devices within a facility. This disclosure statement outlines the seller's knowledge about potential risks, malfunctions, or security concerns related to these devices, thereby promoting an informed decision-making process for potential buyers. Key features of the form include detailed inquiries about the device’s operational history, any incidents of malfunction, and compliance with safety standards. Users must fill in all sections accurately and may provide explanations on attached sheets if necessary. It is essential for those in the medical field, including attorneys, partners, owners, associates, paralegals, and legal assistants, to utilize this form to mitigate liability risks and foster trust among clients. Specific use cases include educational institutions or healthcare facilities acquiring new medical devices and needing to establish a clear understanding of the associated risks. Legal professionals play a key role in guiding clients through the process of completing this form to ensure compliance with relevant regulatory requirements.
Free preview
  • Preview Residential Real Estate Sales Disclosure Statement
  • Preview Residential Real Estate Sales Disclosure Statement
  • Preview Residential Real Estate Sales Disclosure Statement
  • Preview Residential Real Estate Sales Disclosure Statement
  • Preview Residential Real Estate Sales Disclosure Statement
  • Preview Residential Real Estate Sales Disclosure Statement
  • Preview Residential Real Estate Sales Disclosure Statement

How to fill out Missouri Residential Real Estate Sales Disclosure Statement?

Securing a reliable source for obtaining the latest and suitable legal templates is a major part of managing administrative processes.

Locating the precise legal documents requires precision and meticulousness, which is why it is essential to obtain examples of the Missouri Disclosure Statement For Medical Device Security solely from trustworthy providers, such as US Legal Forms. An incorrect template could squander your time and hinder your current situation.

Once you have the document on your device, you can edit it using the software or print it out and complete it by hand. Eliminate the hassle linked to your legal documentation. Explore the extensive US Legal Forms repository to discover legal samples, assess their applicability to your situation, and download them without delay.

  1. Utilize the catalog browsing or search feature to find your template.
  2. Review the description of the form to determine if it meets the stipulations of your state and locale.
  3. Access the form preview, if available, to ensure the template is indeed the one you seek.
  4. Return to the search and look for the appropriate template if the Missouri Disclosure Statement For Medical Device Security does not fulfill your requirements.
  5. If you are certain about the document's applicability, proceed to download it.
  6. If you are an authorized user, click Log in to verify your identity and access your selected documents in My documents.
  7. If you do not possess an account, click Buy now to acquire the document.
  8. Select the pricing plan that best suits your needs.
  9. Move on to the registration to finalize your purchase.
  10. Complete your transaction by selecting a payment option (credit card or PayPal).
  11. Choose the file format for downloading the Missouri Disclosure Statement For Medical Device Security.

Form popularity

FAQ

Most public court records and court exhibits can be accessed in person. For some pre-1979 court records, there are limited microfiche available to search online.

Many Washington State courts have a public access terminal in the courthouse where you can view JIS public record case information such as an index of filed cases and a list of documents filed in each case. Contact your local court to see if they have a public access terminal.

How do I get a copy of a court file? You may obtain copies via mail, make your request on the internet using the Electronic Records Request application, ECR ONLINE application or come in person. Sealed records are not available by mail or via the Electronic Records Request or ECR ONLINE application.

A Motion for Reconsideration in Washington is governed under Civil Rule 59(a), the grounds* for which you can file the motion are: (1) Irregularity in the proceedings of the court, jury or adverse party, or any order of the court, or abuse of discretion, by which such party was prevented from having a fair trial.

Use this form if you believe the court's decision was legally incorrect or you have newly discovered evidence, and you want the same judge or commissioner to reconsider their decision. If you want a judge to review a commissioner's decision, use the Motion for Revision (form PO 110).

How to Access Court Documents Online. Go to the KC Script Portal to view, download, and request court documents. Click here for more information on how to use the KC Script Portal. In Person. Visit any of our three locations. ... By Mail. Please fill out the request form below and mail it to the addresses listed in the form.

You may need to file a new Business License Application to change the physical address of a business. Contact Business Licensing Service at 360-705-6741 to have a customer service specialist review your account and determine if you need to file a new Business License Application.

Motions for Reconsideration are done in writing. Motions for Reconsideration must be filed and served on the other party within 10 calendar days of the Commissioner's decision. The parties do not appear before the Commissioner for oral argument unless the Commissioner requests it.

A motion for reconsideration shall point out specifically the findings or conclusions of the judgment or final order which are not supported by the evidence or which are contrary to law, making express reference to the testimonial or documentary evidence or to provisions of law alleged to be contrary to such findings ...

Please Submit a request through the new Public Records Request Portal. It will prompt you to create an account after selecting, Submit a Records Request. The request must be for a specific identifiable record or series of records.

Trusted and secure by over 3 million people of the world’s leading companies

Missouri Disclosure Statement For Medical Device Security