Hawaii House Without A Key

State:
Hawaii
Control #:
HI-37014
Format:
Word; 
Rich Text
Instant download

This form is part of a form package!

Get all related documents in one bundle, so you don’t have to search separately.

Description

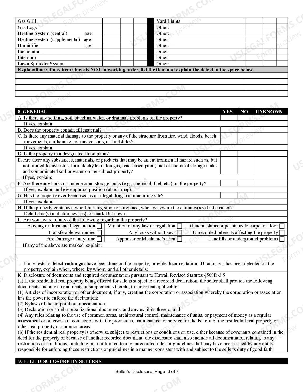
The Hawaii Residential Property Disclosure Statement is a crucial form for residential real estate transactions in Hawaii, designed to inform prospective buyers about the property’s known issues and conditions. It requires sellers to provide complete and accurate disclosures regarding various aspects of the property, such as its title, water and sewage systems, structural integrity, and appliances. The form emphasizes the importance of filling in all sections, using 'NA' where applicable, and attaching explanations if further detail is required. This document helps buyers make informed decisions and is particularly useful for legal professionals including attorneys, paralegals, and legal assistants by facilitating due diligence in property transactions. Additionally, real estate partners and owners benefit from using this form as it aids in mitigating liability by ensuring transparent communication of a property’s condition. Each buyer should review the disclosures diligently and may rescind the purchase contract within a specified timeline if concerns arise. Proper use and understanding of this form can promote smoother transactions and protect the interests of all parties involved.
Free preview
  • Preview Residential Real Estate Sales Disclosure Statement
  • Preview Residential Real Estate Sales Disclosure Statement
  • Preview Residential Real Estate Sales Disclosure Statement
  • Preview Residential Real Estate Sales Disclosure Statement
  • Preview Residential Real Estate Sales Disclosure Statement
  • Preview Residential Real Estate Sales Disclosure Statement
  • Preview Residential Real Estate Sales Disclosure Statement

How to fill out Hawaii Residential Real Estate Sales Disclosure Statement?

Creating legal documents from the ground up can occasionally be daunting.

Certain situations may require extensive research and significant financial investment.

If you desire a more straightforward and economical method for preparing Hawaii House Without A Key or any other documentation without unnecessary complications, US Legal Forms is consistently accessible to you.

Our online library of over 85,000 current legal documents covers nearly every aspect of your financial, legal, and personal affairs. With just a few clicks, you can swiftly obtain state- and county-specific templates carefully crafted by our legal professionals.

Review the document preview and descriptions to confirm that you are on the correct form you are looking for. Ensure that the template you select complies with your state and county regulations and laws. Choose the most appropriate subscription plan to acquire the Hawaii House Without A Key. Download the document, then complete, sign, and print it. US Legal Forms enjoys a solid reputation and boasts over 25 years of experience. Join us today and make document completion a smooth and simple endeavor!

  1. Utilize our site whenever you seek reliable and dependable services through which you can rapidly locate and download the Hawaii House Without A Key.
  2. If you are already familiar with our services and have previously established an account with us, simply Log In to your account, find the form and download it or re-download it anytime in the My documents section.
  3. Not registered yet? No worries. It takes minimal time to sign up and explore the library.
  4. Before proceeding to download Hawaii House Without A Key, be sure to follow these pointers.

Form popularity

FAQ

Visiting the Hawaii house without a key is certainly a worthwhile experience for anyone traveling to the islands. This iconic venue provides exceptional dining, live music, and breathtaking sunset views, making it perfect for a relaxing evening. Many guests rave about the atmosphere and the unique Hawaiian spirit that permeates the space. To make the most of your visit, consider planning ahead and reserving your spot, especially during peak seasons.

When visiting the Hawaii house without a key, you can expect a relaxed and casual atmosphere. Guests typically wear resort casual attire, which includes sundresses, shorts, and flip-flops. While there is no strict dress code, it’s advisable to dress comfortably to enjoy the beautiful surroundings. This ensures a pleasant experience while you savor the stunning ocean views and delightful food.

The term 'house without a key' refers to a place where guests can enjoy a carefree and welcoming environment, often associated with the iconic location in Hawaii. It symbolizes a space where you can unwind and feel at home without the constraints of formality. This concept resonates with the spirit of aloha, inviting everyone to share in the beauty and enjoyment of Hawaiian culture. If you’re planning your visit, consider using uslegalforms to navigate any legalities smoothly.

When visiting the Hawaii house without a key, you can expect a relaxed yet tasteful atmosphere. While there is no strict dress code, it’s advisable to dress in nice casual attire to match the enchanting ambiance. This way, you can enjoy the stunning views and delicious food without feeling out of place. Remember, comfort is key, but a touch of elegance can enhance your experience.

Living in Hawaii on $2,000 a month can be challenging, but it's not impossible. You may need to prioritize your expenses and look for affordable housing options, such as a Hawaii house without a key. Budgeting wisely for essentials like food and transportation is crucial. Additionally, consider exploring job opportunities that can supplement your income while enjoying the beautiful lifestyle Hawaii offers.

When planning to stay at a Hawaii house without a key, it is advisable to make reservations ahead of time. Many properties in Hawaii have high demand, especially during peak seasons. By reserving your house, you ensure availability and can often secure better rates. Using platforms like US Legal Forms can simplify the booking process and help you find the perfect house for your stay.

Reservations are recommended for the Hawaii house without a key, especially during busy times. Making a reservation guarantees your spot and helps you secure the best experience possible. You can easily book your table through their website or by calling directly. Planning ahead ensures you won’t miss out on the beautiful atmosphere and live entertainment offered.

Trusted and secure by over 3 million people of the world’s leading companies

Hawaii House Without A Key