Form Seller's Property Condition Disclosure 2020 Utah Form

State:
Utah
Control #:
UT-37014
Format:
Word; 
Rich Text
Instant download

Description

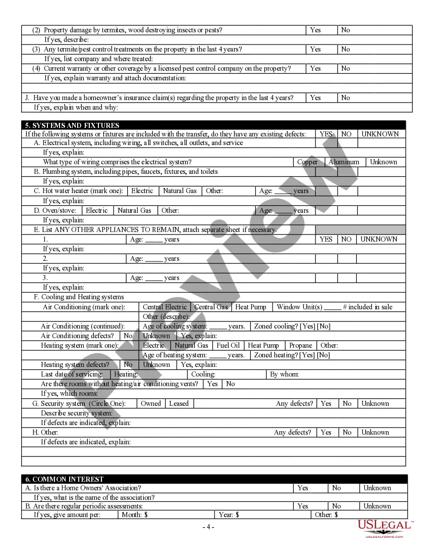
The Form Seller's Property Condition Disclosure 2020 Utah Form is a comprehensive document designed for sellers to disclose the condition of residential property to prospective buyers. It requires sellers to answer a series of questions about various aspects of the property, including title, water source, sewer system, structural issues, and systems and fixtures. The form mandates that all spaces be filled in, with options to attach explanations for any complex items. Key features include transparency about property defects and the suggestion for buyers to seek professional inspections for a thorough assessment. This form is particularly useful for attorneys, partners, owners, associates, paralegals, and legal assistants as it helps ensure legal compliance in real estate transactions. By using the form, these professionals can facilitate negotiations more effectively, protect their clients' interests, and provide clarity in property conditions. Moreover, the structured format minimizes ambiguity in disclosures, offering both buyers and sellers a clear understanding of property status.
Free preview
  • Preview Residential Real Estate Sales Disclosure Statement
  • Preview Residential Real Estate Sales Disclosure Statement
  • Preview Residential Real Estate Sales Disclosure Statement
  • Preview Residential Real Estate Sales Disclosure Statement
  • Preview Residential Real Estate Sales Disclosure Statement
  • Preview Residential Real Estate Sales Disclosure Statement

Form popularity

FAQ

Utah law mandates that sellers disclose specific information about their property's condition to buyers. Sellers must reveal details such as past water damage, mold issues, and major repairs. By using the Form seller's property condition disclosure 2020 Utah form, sellers can fulfill their legal obligations while helping buyers make informed decisions, creating a smoother transaction experience.

Utah is not classified as a non-disclosure state regarding property sales. Sellers are required to provide disclosures about the property's condition during the sale process. Therefore, employing the Form seller's property condition disclosure 2020 Utah form can simplify this process and ensure compliance with state laws.

Yes, Utah follows the caveat emptor principle, meaning 'buyer beware.' This indicates that sellers do not have an obligation to disclose defects unless they are aware of them. To avoid any misunderstandings or disputes, utilizing the Form seller's property condition disclosure 2020 Utah form can help sellers communicate known issues to potential buyers.

In Utah, you generally do not need to disclose a death in the home unless it was due to violent circumstances that may affect the property's value. However, real estate agents often advise homeowners to be upfront about any issues that might influence a buyer's decision. Using the Form seller's property condition disclosure 2020 Utah form helps ensure you provide all necessary information, creating transparency that can foster trust.

In Utah, sellers are required to disclose specific details about the property’s condition and any known deficiencies. This includes older systems, water damage, and pest infestations. Completing the Form seller's property condition disclosure 2020 utah form allows sellers to provide complete disclosures, fulfilling legal obligations and enhancing buyer confidence.

In Utah, a property condition disclosure must be provided to buyers before they make an offer on a property. This timing is crucial for buyers to make informed decisions. By using the Form seller's property condition disclosure 2020 utah form, sellers can ensure that they meet this requirement efficiently.

Most seller property disclosures are required to inform potential buyers of any known issues regarding the property. These disclosures cover various factors, including structural problems, environmental hazards, and repairs. By submitting the Form seller's property condition disclosure 2020 utah form, sellers ensure that they provide comprehensive information to buyers, fostering trust and minimizing liability.

No, Utah is not classified as a non-disclosure state. In fact, that means sellers must disclose information about the property to potential buyers. Utilizing the Form seller's property condition disclosure 2020 utah form helps sellers comply with Utah's disclosure requirements and keeps buyers informed.

In Nebraska, sellers of residential property are generally required to complete a seller property condition disclosure statement. This ensures transparency about the property's condition. By using the Form seller's property condition disclosure 2020 utah form, sellers can effectively meet their disclosure obligations and provide buyers with vital information.

The Form seller's property condition disclosure 2020 Utah form requires sellers to disclose specific conditions of the property they are selling. This includes details about the structural integrity, plumbing, electrical systems, and any known issues with the property. It is essential for you, as a seller, to be transparent about these aspects to avoid legal complications later on. By using the US Legal Forms platform, you can easily access this form and ensure that all required information is accurately provided.

Trusted and secure by over 3 million people of the world’s leading companies

Form Seller's Property Condition Disclosure 2020 Utah Form